Die Kreisverwaltung des Eifelkreises Bitburg-Prüm hat sodann mit Entscheidung vom 25.09.2025 die Änderung des Flächennutzungsplans aufgrund von § 6 Abs. 1 Baugesetzbuch (BauGB) genehmigt. Die Änderung des Flächennutzungsplans und ihre Genehmigung werden hiermit gemäß § 6 Abs. 5 Satz 1 BauGB öffentlich bekannt gemacht.
Die Änderung des Flächennutzungsplans wird mit dem Tag dieser Bekanntmachung wirksam.
Zweck dieser Änderung ist die Schaffung der planungsrechtlichen Voraussetzungen für die Errichtung einer erdgebundenen Freiflächenphotovoltaikanlage und die Sicherung einer nachhaltigen städtebaulichen Entwicklung im Bereich „In Burgeich“. Parallel zur Aufstellung eines Bebauungsplanes war der Flächennutzungsplan für diesen Bereich zu ändern, da er zuvor eine Fläche für die Landwirtschaft dargestellt hat. Mit der Änderung des Flächennutzungsplans wird in diesem Bereich nunmehr eine Sonderbaufläche für Photovoltaik dargestellt.
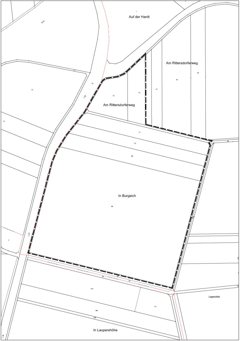
Lage und Abgrenzung des Plangebietes
Der räumliche Geltungsbereich liegt am westlichen Rand der Gemarkung Matzen, unmittelbar östlich der Landesstraße L 32 Richtung Pützhöhe. Das Plangebiet besitzt eine Gesamtfläche von rd. 14,5 ha und beinhaltet folgende Flächen:
Gemarkung Matzen, Flur 9, Flurstücke: 45 (tlw.), 68, 69, 70, 71, 72 73.
Die Abgrenzung des Geltungsbereiches ist der nachfolgenden Abbildung zu entnehmen. Die parzellenscharfe Umgrenzung des Plangebietes kann den zur Einsichtnahme bereit-gehaltenen Unterlagen entnommen werden.

Die Flächennutzungsplanänderung, einschließlich der Begründung mit Umweltbericht und der zusammenfassenden Erklärung, kann ab sofort bei der nachfolgenden Stelle eingesehen werden; es kann über den Inhalt Auskunft verlangt werden (vgl. § 6 Abs. 5 Satz 3 BauGB):
• Stadtverwaltung Bitburg, Rathausplatz 3-4, 54634 Bitburg; E-Mail: stadtentwicklung@stadt.bitburg.de oder an zimmer.j@stadt.bitburg.de, Tel.: 06561/6001-330
• Dienststunden: Montags bis freitags von 8:30 Uhr bis 12:30 Uhr, montags bis mittwochs von 14:00 Uhr bis 16:00 Uhr und donnerstags von 14:00 Uhr bis 18:00 Uhr. Bei Bedarf ist auch eine Terminvereinbarung außerhalb dieser Öffnungszeiten möglich.
Weiterhin ist die Einsichtnahme im Internet auf der Homepage der Stadt Bitburg (www.bitburg.de) möglich.
Hinweise:
I. Es wird darauf hingewiesen, dass
- eine beachtliche Verletzung der in § 214 Abs. 1 Satz 1 Nr. 1 – 3 des BauGB bezeichneten Verfahrens- und Formvorschriften,
- eine unter Berücksichtigung des § 214 Abs. 2 BauGB beachtliche Verletzung der Vorschriften über das Verhältnis des Bebauungsplans und des Flächennutzungsplans und
- ein nach § 214 Abs. 3 Satz 2 BauGB beachtlicher Mangel des Abwägungsvorgangs
gemäß § 215 Abs. 1 BauGB unbeachtlich werden, wenn sie nicht innerhalb eines Jahres seit dieser Bekanntmachung schriftlich gegenüber der Stadt Bitburg, Rathausplatz 3-4, 54634 Bitburg unter Darlegung des die Verletzung begründenden Sachverhalts geltend gemacht worden sind.
II. Zudem wird auf die Regelung des § 24 Abs. 6 GemO hingewiesen, wonach Satzungen, die unter Verletzung von Verfahrens- oder Formvorschriften dieses Gesetzes oder auf Grund dieses Gesetzes zustande gekommen sind, ein Jahr nach der Bekanntmachung als von Anfang an gültig zustande gekommen gelten. Dies gilt nicht, wenn
1. die Bestimmungen über die Öffentlichkeit der Sitzung, die Genehmigung, die Ausfertigung oder die Bekanntmachung der Satzung verletzt worden sind, oder
2. vor Ablauf der in § 24 Abs. 6 Satz 1 GemO genannten Frist die Aufsichtsbehörde den Beschluss beanstandet oder jemand die Verletzung der Verfahrens- oder Formvorschriften gegenüber der Stadt Bitburg, Rathausplatz 3-4, 54634 Bitburg unter Bezeichnung des Sachverhalts, der die Verletzung begründen soll, schriftlich geltend gemacht hat.
Hat jemand eine Verletzung nach § 24 Abs. 6 Satz 2 Nr. 2 GemO geltend gemacht, so kann auch nach Ablauf der in § 24 Abs. 6 Satz 1 GemO genannten Frist jedermann diese Verletzung geltend machen.
Stadtverwaltung Bitburg
Bitburg, 26.09.2025
Joachim Kandels
Bürgermeister
